ROK: 2010
INWESTOR: SINFONIA VARSOVIA
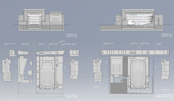
POWIERZCHNIA UŻYTKOWA: 10 000 m2
FAZA: projekt konkursowy
LOKALIZACJA: Warszawa
Projektowany kompleks siedziby Orkiestry Sinfonia Varsovia, zlokalizowany na terenie Instytutu Weterynarii, miał na celu stworzenie wielkomiejskiego ośrodka kulturalnego przy jednoczesnym zachowaniu charakteru założenia historycznego.
W tym celu zdecydowano się na wykreowanie zróżnicowanego charakteru nowego budynku. Fasada frontonu nowego Gmachu z wertykalnymi podziałami o zmiennym rytmie zdradza przeznaczenie obiektu. Definiuje również funkcję placu, z którego urządzono główne wejście. Od strony południowej (wewnętrznej) zdecydowano się na ograniczenie do niezbędnego minimum zarówno gabarytów jak i architektonicznych środków wyrazu projektowanego budynku tak, by nie dominował istniejącego założenia wpisując się w charakter układu zabudowy.
