ROK: 2008

INWESTOR: Teatr Nowy

POWIERZCHNIA : 7 171 m2

LOKALIZACJA: Warszawa

FAZA: projekt konkursowy- czwarte miejsce

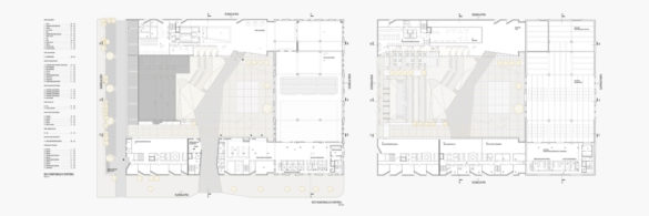
Tematem konkursu było opracowanie koncepcji architektoniczno – urbanistycznej siedziby Teatru Nowego w Warszawie.

Organizacja budynków Nowego Teatru wzdłuż przylegających ulic (Madalińskiego, Sandomierskiej i Melsztyńskiej) oraz wokół dziedzińca zapewnia stworzenie przestrzeni zogniskowanej na akt twórczy i jego odbiór, wydzielonej od zgiełku miasta, ale nierozerwalnie z nim związanej. Zewnętrzna skorupa kompleksu – muszla z betonowych ścian budynków projektowanych oraz poprzemysłowa elewacja hali, tworzą skuteczną barierę przed niepożądanym wpływem zewnętrznym. Jednocześnie, zgodnie z intencją zamawiającego dotyczącą nowej, otwartej formuły teatru, pęknięcia w skorupie oraz dominanta zespołu – transparentna bryła przestrzeni edukacyjnej i sal prób wykształcona z ducha i przestrzeni teatru, odkrywająca najbardziej intymne strefy procesu twórczego, zawieszona nad halą, jest wyraźnym znakiem definiującym funkcję i zapraszającym do wejścia w świat wewnętrzny kompleksu.